Мы используем куки-файлы. Соглашение об использовании
Помещение свободного назначения, 2 628 м²

Продается помещение свободного назначения, 2 628 м²

Площадь2 628 м²
Этаж1 из 4
ПомещениеСвободно
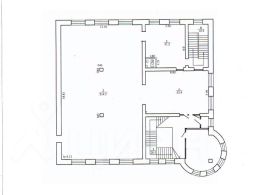
Номер объекта: 537519. Продаем бизнес-центр Новый поворот, расположенный в г. Биробиджане, по ул. Пионерская, д. 70В. Состоих из двух очередей. Здания переменной этажности, 3-4 этажа, общая площадь 2 628 кв.м. Площадь земельного участка 7 235 кв.м. Все коммуникации центральные. Ранее первый этаж занимал банк и кафе, второй этаж торговля, выше офисные помещения. В настоящее время ведем работу по сдаче в аренду свободных площадей.
lock

Войдите или зарегистрируйтесь
для просмотра информации

Просматривайте условия сделки и всю информацию об объекте
Сохраняйте фильтры в поиске и не вводите заново
Доступ к избранному с любого устройства
Неограниченное добавление в избранное
Позвоните автору
Вам ответят на все вопросы
Остались вопросы по объявлению?
Позвоните владельцу объявления и уточните необходимую информацию.
  • Инфраструктура
  • Похожие рядом
Помощь надёжных риелторов
Риелтор партнёр Циан поможет купить или продать любую недвижимость
55 000 000 ₽
728 214 $
623 000
Цена за метр
20 929 ₽
Налог
НДС включен: 9 918 032 ₽
Агентство недвижимости
Суперагент
На Циан
11 лет
Объектов в работе
272